Imagine 64

2 Camere Centrala Proprie Metrou Gorjului

ID: P256976 Bucuresti, Gorjului 1
138.999€
Descriere
GNM Estate va ofera spre vanzare un apartament cu doua camere, decomandat, situat in zona Gorjului, in vecinatate Spitalul Wellborn.
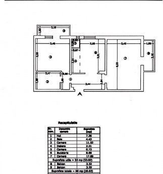
Imobilul se afla intr-un bloc de apartamente, construit in anul 1986, fara risc seismic, la parter intr-un imobil de 4 etaje si detine o suprafata totala de 59,63 m.p. din care suprafata utila este 53,02 m.p. si balcoane in suprafata de 6,71 m.p.
Locuinta este alcatuita din un dormitor, un living, o bucatarie, o baie, un hol si doua balcoane.

Confortul termic este realizat cu ajutorul centralei proprii pe gaz.
In imediata apropiere se intalnesc puncte farmaceutice, medicale, comerciale, educationale, de divertisment, bancare, parcuri, piete, etc.
Accesul la mijloacele de transport in comun facil: 8 minute pana la statia de metrou Gorjului sau 3 minute pan ala statia Stb Rosia Montana.

Se accepta toate modalitatile de plata.
Informatiile tehnice au caracter orientativ, acestea fiind preluate de la proprietari.
Pentru mai multe detalii si vizionari, ne puteti contacta telefonic, specificand codul de identificare P256976.
Caracteristici
  • ID:P256976
  • Nr. camere:2
  • Nr. dormitoare:1
  • S. utila:53.02 mp
  • S. balcoane:6.61 mp
  • S. utila totala:59.63 mp
  • S. construita:70.00 mp
  • Comp.:Decomandat
  • Confort:1
  • Etaj:Parter
  • Nr. bucatarii:1
  • Nr. bai:1
  • Nr. balcoane:1
  • An constructie:1986
  • Structura:Beton
  • Tip imobil:Bloc
  • Regim inaltime:P+4
Specificatii
Curent
Apa
Canalizare
Gaz
Centrala proprie
Calorifere
Aer conditionat
Izolatie Interior
Vopsea lavabila
Faianta
Parchet
Gresie
Ferestre Termopan
Usa intrare Metal
Usa interior Lemn
Bucatarie Mobilata
Bucatarie Utilata
Apometre
Contor caldura
Contor gaz
Complet mobilat
Interfon
Localizare
Eugen Marinescu
Esti interesat de aceasta proprietate ?
Proprietati similare
TOP 0% comision De vanzare Imagine 409
2 Camere Et.1/10 Decomandat An constructie 1980 Metrou Gorjului
Bucuresti, Gorjului 125.000€
2 camere 1 baie 51.10mp
TOP 0% comision De vanzare Imagine 564
3 Camere - Et.6/8 - Centrala Proprie - Sos. Oltenitei Metrou Aparatorii Patriei
Bucuresti, Aparatorii Patriei 149.999€
3 camere 2 bai 66.43mp
TOP De vanzare Imagine 657
APARTAMENT 2 CAMERE LA 5 MINUTE DE cISMIGIU FARA RISC
Bucuresti, Cismigiu 158.000€
2 camere 1 baie 42mp
0% comision De vanzare Imagine 773
2 Camere Et.4/7Bloc Reabilitat Zona Tineretului - Cantemir
Bucuresti, Tineretului 134.500€
2 camere 1 baie 44.96mp
0% comision De vanzare Imagine 766
3 Camere Et.6/10 Bloc Reabilitat - 10 Minute Metrou Dristor
Bucuresti, Camil Ressu 123.500€
3 camere 1 baie 60.28mp
0% comision De vanzare Imagine 730
3 Camere Decomandat Parter/4 Drumul Taberei - Metrou Favorit
Bucuresti, Gorjului 124.900€
3 camere 1 baie 60mp