Apartament 2 camere central Victoriei
ID: P258618 Bucuresti, Victoriei
1
141.000€
Descriere
GNM Estate vă prezintă spre vânzare un apartament cu 2 camere, ideal atât pentru locuit, cât și pentru investiție, situat în inima orașului, pe strada Dr. Iacob Felix, la câțiva pași de Piața Victoriei.
Localizare de top: Zona Piața Victoriei – acces rapid la metrou, hub-uri de business și restaurante.
Renovat integral: Instalații electrice și sanitare complet noi. Totul este modern, proaspăt și pregătit pentru noii proprietari.
Confort termic: Bloc anvelopat recent, situat la etajul 1 din 10.
Siguranță: Supraveghere video în bloc și ZERO risc seismic (fără nicio clasă de urgență).
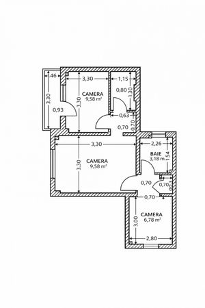
Suprafață: 41 mp , An construcție: 1976
Compartimentare eficientă, fără spațiu irosit.
Locuința oferă echilibrul perfect între liniștea unei străzi secundare și efervescența centrului capitalei. Se vinde exact așa cum se vede în poze, fiind o soluție "la cheie".
Vă așteptăm cu drag la o vizionare pentru a descoperi potențialul acestui apartament! COD proprietate P258618
GNM Estate vă prezintă spre vânzare un apartament cu 2 camere, ideal atât pentru locuit, cât și pentru investiție, situat în inima orașului, pe strada Dr. Iacob Felix, la câțiva pași de Piața Victoriei.
Localizare de top: Zona Piața Victoriei – acces rapid la metrou, hub-uri de business și restaurante.
Renovat integral: Instalații electrice și sanitare complet noi. Totul este modern, proaspăt și pregătit pentru noii proprietari.
Confort termic: Bloc anvelopat recent, situat la etajul 1 din 10.
Siguranță: Supraveghere video în bloc și ZERO risc seismic (fără nicio clasă de urgență).
Suprafață: 41 mp , An construcție: 1976
Compartimentare eficientă, fără spațiu irosit.
Locuința oferă echilibrul perfect între liniștea unei străzi secundare și efervescența centrului capitalei. Se vinde exact așa cum se vede în poze, fiind o soluție "la cheie".
Vă așteptăm cu drag la o vizionare pentru a descoperi potențialul acestui apartament! COD proprietate P258618
Caracteristici
- ID:P258618
- Nr. camere:2
- Nr. dormitoare:1
- S. utila:37.50 mp
- S. balcoane:2.62 mp
- S. utila totala:40.12 mp
- S. construita:52.00 mp
- Comp.:Semidecomandat
- Etaj:Etaj 1
- Nr. bucatarii:1
- Nr. bai:1
- Nr. balcoane:1
- An constructie:1976
- An renovare:2022
- Structura:Beton
- Tip imobil:Bloc
- Regim inaltime:P+10
Specificatii
Curent
Apa
Canalizare
Gaz
Termoficare
Calorifere
Aer conditionat
Ferestre Termopan
Usa intrare Metal
Usa interior Celulare
Bucatarie Mobilata
Complet mobilat
Interfon
Lift
Localizare
Marius Marinescu
Esti interesat de aceasta proprietate ?
Proprietati similare