Imagine 64

3 Camere Et.6/10 Bloc Reabilitat - 10 Minute Metrou Dristor

ID: P256963 Bucuresti, Camil Ressu 1
123.500€
Descriere
GNM Estate va ofera spre vanzare un apartament cu 3 camere, semidecomandat, situat in zona Dristor, pe bd. Camil Ressu.
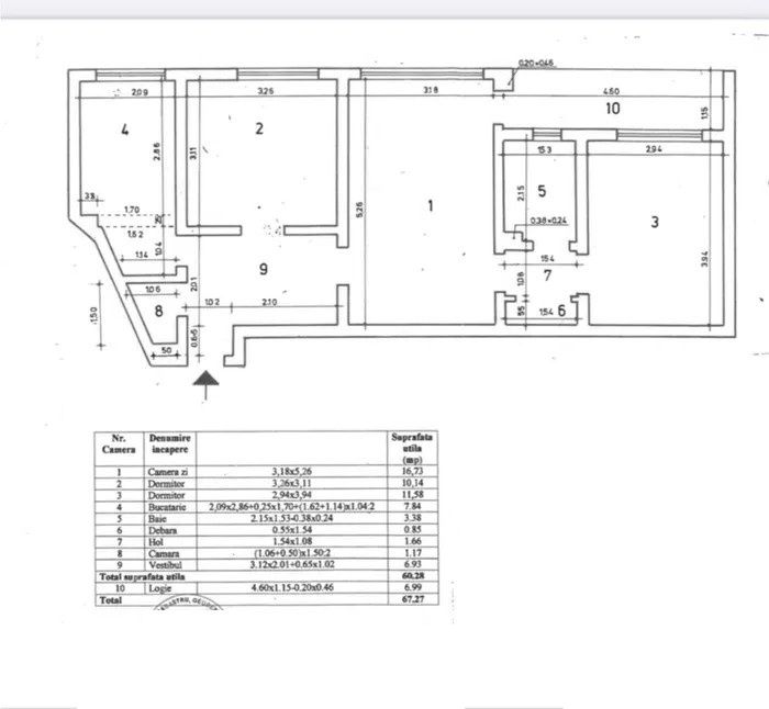
Imobilul se afla intr-un bloc de apartamente, construit in anul 1967,reabilitat, fara risc seismic, la etajul 6/10 si detine o suprafata totala de 67,27m.p. din care suprafata utila este 60,28 m.p. si balcon in suprafata de 6,99 m.p.
Locuinta este alcatuita din: doua dormitoare, un living, o bucatarie, doua bai, doua holuri si o debara.

Confortul termic este realizat de la reteaua edilitara de termoficare.
In imediata apropiere se intalnesc puncte farmaceutice, medicale, comerciale, educationale, de divertisment, bancare, parcuri, piete, etc.
Accesul la mijloacele de transport in comun facil: 10 minute pana la statia de metrou Dristor sau doua minute pna la statia Stb Voluntarilor.

Se accepta toate modalitatile de plata.
Informatiile tehnice au caracter orientativ, acestea fiind preluate de la proprietari.
Pentru mai multe detalii si vizionari, ne puteti contacta telefonic, specificand codul de identificare P256963.
Caracteristici
  • ID:P256963
  • Nr. camere:3
  • Nr. dormitoare:2
  • S. utila:60.28 mp
  • S. balcoane:6.99 mp
  • S. utila totala:67.27 mp
  • S. construita:80.00 mp
  • Comp.:Semidecomandat
  • Confort:1
  • Etaj:Etaj 6
  • Nr. bucatarii:1
  • Nr. bai:1
  • Nr. balcoane:1
  • An constructie:1967
  • Tip imobil:Bloc
  • Regim inaltime:P+8
Specificatii
Curent
Apa
Canalizare
Gaz
Termoficare
Calorifere
Izolatie Exterior
Bloc izolat termic
Vopsea lavabila
Faianta
Parchet
Gresie
Ferestre Termopan
Usa intrare Metal
Usa interior Lemn
Debara
Bucatarie Mobilata
Bucatarie Utilata
Apometre
Complet mobilat
Interfon
Lift
Localizare
Eugen Marinescu
Esti interesat de aceasta proprietate ?
Proprietati similare
TOP 0% comision De vanzare Imagine 409
2 Camere Et.1/10 Decomandat An constructie 1980 Metrou Gorjului
Bucuresti, Gorjului 125.000€
2 camere 1 baie 51.10mp
TOP 0% comision De vanzare Imagine 574
3 Camere Bloc Reabilitat Zona Ghencea
Bucuresti, Ghencea 105.000€ 108.000€
3 camere 2 bai 64.11mp
0% comision De vanzare Imagine 781
2 Camere Centrala Proprie Metrou Gorjului
Bucuresti, Gorjului 138.999€
2 camere 1 baie 53.02mp
0% comision De vanzare Imagine 773
2 Camere Et.4/7Bloc Reabilitat Zona Tineretului - Cantemir
Bucuresti, Tineretului 134.500€
2 camere 1 baie 44.96mp
0% comision De vanzare Imagine 730
3 Camere Decomandat Parter/4 Drumul Taberei - Metrou Favorit
Bucuresti, Gorjului 124.900€
3 camere 1 baie 60mp
0% comision De vanzare Imagine 702
2 Camere Et.7/10 Decomandat An constructie 1980 Metrou Gorjului
Bucuresti, Gorjului 135.000€
2 camere 1 baie 53.62mp